Kategoria: Bezpieczniki Samochodowe Tesla

Schemat skrzynki bezpieczników w modelach Tesla Model S i Model X

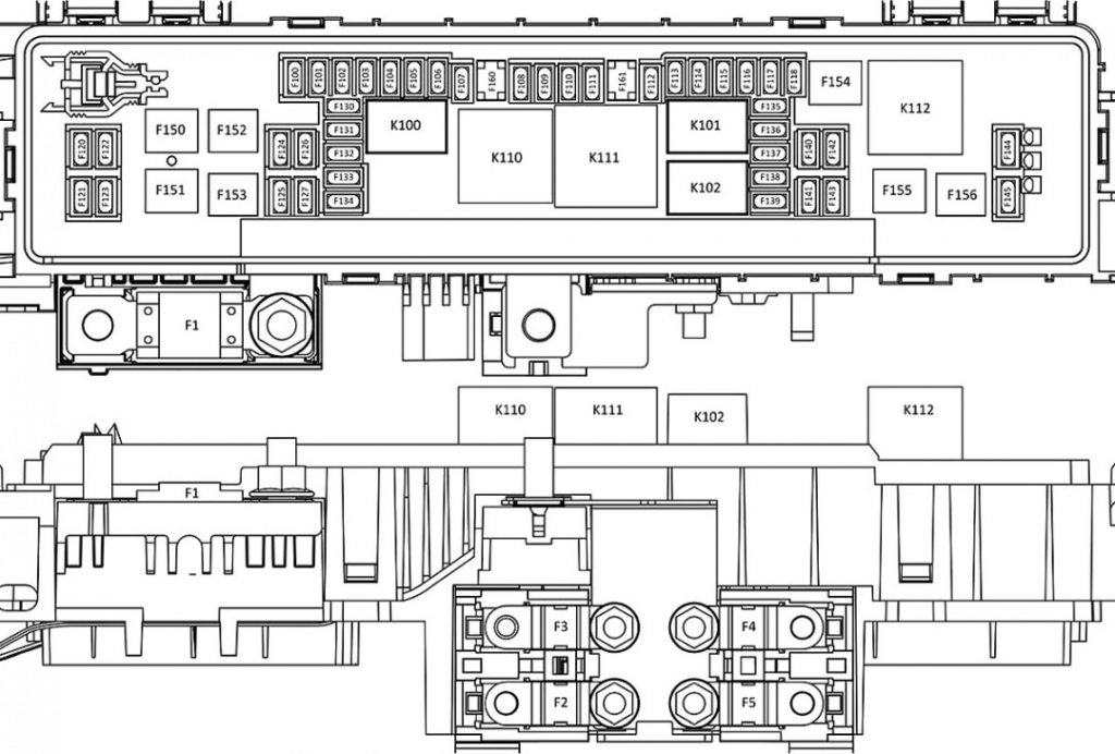
Skrzynka bezpieczników w przednim przedziale NIE. A Opis funkcjonalny F1 250 Wejście DCDC F2 60 Wspomaganie kierownicy F3 — Nieużywane F4 125 Posypka kabiny F100 5 Moduł syreny i włamania F101 15 Kamera wspomagająca kierowcę z przodu F102 — Nieużywane F103 25 Zawory ABS F104 5 Czujnik baterii F105 — Nieużywane F106 — Nieużywane F107 […]

Schemat skrzynki bezpieczników Tesla Model S, X (2012 – 2016)

Tesla Model S to pięciodrzwiowy samochód elektryczny produkowany przez amerykańską firmę Tesla, który powstał na bazie Tesli Model X. W związku z tym modele te mają podobne obwody elektryczne. W tym artykule przedstawimy opis bezpieczników i przekaźników w modelu Tesla Model CX wraz ze schematami bloków bezpieczników i ich lokalizacją dla modeli z lat 2012, 2013, 2014, 2015 […]