Isuzu Elf to seria samochodów ciężarowych produkowanych przez Isuzu, produkowanych od 1954 roku do chwili obecnej w sześciu generacjach, z różnymi modyfikacjami i typami silników. Poza Japonią znana jest jako seria N (NQR 75, NPR 71 i wiele innych). W tym artykule przedstawimy opis bezpieczników i przekaźników Isuzu Elf NSeries wraz ze schematami bloków bezpieczników, ich lokalizacją i przykładowymi zdjęciami dla modeli 5. generacji (1989, 1990, 1991, 1992, 1993, 1994, 1995, 1996, 1997, 1998, 1999, 2000, 2001, 2002, 2003, 2004, 2005, 2006) i 6. generacji (2007, 2008, 2009, 2010, 2011, 2012, 2013, 2014, 2015, 2018, 2017, 2020). Wybierz bezpiecznik do zapalniczki samochodowej.

Typ 1
Schematy te przeznaczone są głównie do modeli piątej generacji oraz modeli z silnikami 4HF1 i 4HG1.
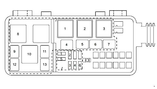
Blok bezpieczników
Blok ten znajduje się w panelu i jest zamknięty pokrywą ochronną, na której odwrocie zostanie wydrukowany aktualny schemat z opisem elementów.



Cechowanie
| 1 | Silnik wentylatora nagrzewnicy 25A 15A, rezystor wentylatora nagrzewnicy, przekaźnik termiczny, przekaźnik ciśnienia, przekaźnik wyłączający klimatyzator, przekaźnik klimatyzatora, termostat, zawór e r układu zwiększania prędkości XX (FICD) | |
| 2 | 10A Wyłącznik klimatyzacji, przekaźnik klimatyzacji, wyłącznik ciśnieniowy, sprzęgło elektromagnetyczne sprężarki klimatyzacji, zawór EP układu zwiększania prędkości XX (FICD), termostat | |
| 3 | Przekaźnik rozrusznika 10A, wyłącznik blokady rozruchu | |
| 4 | 15A Zapalniczka samochodowa, radio | |
| 5 | 10A Reflektor (prawy), przekaźnik przełącznika reflektorów | |
| 6 | 10A Reflektor (lewy), przekaźnik przełącznika reflektorów, przekaźnik kierunkowskazów, kierunkowskaz | |
| 7 | 15A Radio i zegar, oświetlenie wnętrza, włącznik oświetlenia wnętrza, wyłączniki krańcowe drzwi, klakson cofania, włącznik zamka drzwi, przekaźnik zamka centralnego, elektryczne zamki drzwi, sterownik zamka centralnego, prędkościomierz | |
| 8 | 15A Wyłącznik awaryjny, klakson, przekaźnik klaksonu, przełącznik klaksonu, kierunkowskazy | |
| 9 | 15A Przekaźnik znaczników, reflektory, przełącznik świateł przeciwmgielnych, światła przeciwmgielne, przełącznik sterowania światłami, przełącznik tylnych świateł przeciwmgielnych, przekaźnik tylnych świateł przeciwmgielnych | |
| 10 | 10A Wyłącznik świateł stopu, światła stopu, sterownik blokady selektora | |
| 11 | 15A Przełącznik sterujący wycieraczkami i spryskiwaczami, silnik wycieraczek, silnik spryskiwaczy, przekaźnik interwału wycieraczek | |
| 12 | Przekaźnik sterowania ruszaniem pod górę 10 A, Elektroniczna jednostka sterująca automatycznej skrzyni biegów, Wskaźnik OD OFF, Wskaźnik BRAK ŁADUNKU, Przekaźnik silnika wentylatora skraplacza, Brzęczyk ostrzegawczy cofania, Przełącznik świateł cofania, Światła cofania, Przełącznik immobilizera, Przekaźnik rozrusznika, Układ wspomagania rozruchu silnika (QOSIII), Sterownik układu wspomagania rozruchu silnika (QOSII), Przekaźnik świec żarowych nr 1, Przekaźnik świec żarowych nr 2, Wskaźnik świec żarowych, Czujnik temperatury płynu chłodzącego, Czujnik temperatury, Czujnik prędkości pojazdu, Tablica rozdzielcza, Przekaźnik szyb elektrycznych, Przekaźnik kierunkowskazów, Przełącznik układu sterowania 4WD, Przekaźnik układu 4WD, Elektropneumatyczny zawór układu sterowania napędem na wszystkie koła | |
| 13 | Podgrzewacz paliwa 10A / 15A | |
| 14 | 15A Ogrzewanie tylne, przełącznik ogrzewania tylnego | |
| 15 | 10A Wyłącznik hamulca wydechowego, przekaźnik sterujący hamulcem wydechowym, zawór elektromagnetyczny hamulca wydechowego, sprzęgło elektromagnetyczne hamulca wydechowego, pedał przyspieszenia | |
| 16 | 10A Przełącznik świateł przeciwmgielnych, światła przeciwmgielne, ECU | |
| 17 | 10A Kierunkowskazy, przełącznik kierunkowskazów | |
| 18 | Alternator 15A, przekaźnik ładowania, sterownik wspomagania rozruchu (QOSIII) | |
| 19 | 10A Zatrzymanie silnika elektrycznego, zawór elektromagnetyczny odcinający paliwo | |
| 20 | 10A Przełącznik regulacji reflektorów, elektryczny napęd regulacji reflektorów | |
| 23 | 15A Przekaźnik sygnału kierunkowskazu, przekaźnik sygnału kierunkowskazu |
Bezpiecznik nr 4 15A odpowiada za zapalniczkę.
Blok przekaźników i bezpieczników
Znajduje się po lewej stronie z tyłu kabiny lub za lewym błotnikiem. Znajdują się tam bezpieczniki dużej mocy lub bezpieczniki i pojedyncze przekaźniki.
Przykładowe zdjęcie

Schemat

Przypisanie przekaźników znajdziesz w tabeli poniżej.
Skrzynka przekaźnikowa
Schemat

Poszczególne elementy mogą znajdować się poza blokami. Na przykład B-261.
Transkrypcja
| B9 | Przekaźnik układu zmiany interwału wycieraczek (POŚREDNI) |
| B-19 | Przekaźnik ładowania |
| B-19 | (PŁACIĆ) |
| B 20 | Przekaźnik reflektorów |
| B 20 | (GŁOWA) |
| B 21 | Przekaźnik klimatyzacji, ogrzewania i wentylacji (OGRZEWANIE I KLIMATYZACJA) |
| B-22 | Przekaźnik wymiarowy (OGON) |
| B-23 | Przekaźnik przełącznika kombinowanego |
| B-23 | (OPORNIK) |
| B-24 | Przekaźnik sygnału dźwiękowego |
| B-24 | (KLAKSON) |
| B-34 | Przekaźnik tylnego światła przeciwmgielnego |
| B-34 | (ŚWIATŁO PRZECIWMGIELNE TYLNE) |
| B-35 | Przekaźnik światła obrotowego |
| B-35 | (ŚWIATŁO NA ROGACH) |
| B-35 | Przekaźnik tylnego światła przeciwmgielnego |
| B-35 | (MGŁA) |
| B-36 | Przekaźnik szyb elektrycznych |
| B-36 | (OKNA) |
| B-37 | Wyłącznik ciśnieniowy |
| B-37 | (klimatyzator THERMO) |
| B-38 | Przekaźnik hamulca górskiego |
| B-38 | (HAMULEC WYDECHOWY) |
| J-12 | Przekaźnik rozrusznika |
| J-12 | (ROZRUSZNIK) |
| J-13 | Przekaźnik świec żarowych |
| J-14 | Przekaźnik świec żarowych |
| J-16 | Przekaźnik sterujący ogrzewaniem skraplacza (CDS). |
| J-18 | Przekaźnik sterujący hamulcem wydechowym |
| J-18 | (EKSPLOATACJA KONTROLI HAMOWANIA) |
| J-19 | Przekaźnik układu 4WD |
| J-19 | Przekaźnik wyłączający klimatyzator |
| J-19 | (PRZECINANIE A/C). |
| J-20 | Przekaźnik powtarzacza kierunkowskazów (ŚWIATŁO OBRYSOWE) |
Typ 2
Ten typ skrzynki bezpiecznikowej stosowany jest w samochodach 6. generacji oraz w samochodach z silnikami 4HG1-1, 4JJ1, 4HK1.
Pudełko we wnętrzu samochodu
Jednostka główna z bezpiecznikami i przekaźnikami znajduje się również w kabinie, na desce rozdzielczej, po stronie pasażera.


Schemat

Spotkanie
| 1 | Przystawka odbioru mocy 20 A (akumulator) |
| 2 | 20A Regulator szyby tylnej prawej |
| 3 | 15A Oświetlenie wnętrza, system audio |
| 4 | 15A Zamki do drzwi |
| 5 | 10A Światła przeciwmgielne |
| 6 | Elektryczne szyby 20A |
| 7 | 10A Układ zapobiegający blokowaniu kół (ABS) |
| 8 | Wycieraczka szyby przedniej 15A |
| 9 | 10A Światło mijania (lewy reflektor) |
| 10 | 10A System zarządzania silnikiem (akumulator) |
| 11 | 10A Światło mijania (prawy reflektor) |
| 12 | 10A światła stopu |
| 13 | Zapłon 15A (IGN2) |
| 14 | 10A Światło drogowe (lewy reflektor) |
| 15 | 10A Światło drogowe (prawy reflektor) |
| 16 | Skrzynka odbioru mocy 10 A (KEY ST) |
| 17 | 10 Rozrusznik |
| 18 | Zapłon 15A (IGN1) |
| 19 | Poduszki powietrzne 10A |
| 20 | 10A Moduł sterowania silnikiem (ECM) |
| 21 | 10A Instrumenty |
| 22 | Oświetlenie 10 A (baterie) |
| 23 | 15A System audio (ACC) |
| 24 | Napęd lusterka zewnętrznego 15A |
| 25 | Klakson 15A |
| 26 | 15A Kierunkowskazy, światła awaryjne |
| 27 | 10A Światła boczne |
| 28 | Podświetlenie 10A |
| 29 | 10A Kierunkowskazy boczne, światła przeciwmgielne tylne |
| 30 | Silnik wentylatora nagrzewnicy 20A, klimatyzator 10A |
| 31 | 20A Zapalniczka samochodowa |
| 32 | Zapasowy |
| 33 | Zapasowy |
| Przekaźnik | |
| 1 | Światła stopu |
| 2 | Silnik wentylatora nagrzewnicy |
| 3 | Wyłącznik zapłonu (kluczyk włączony) |
| 4 | 4JJ1, 4HK1: Zamki drzwi (blokowanie) |
| 4HG1: miejsce rezerwowe | |
| 5 | 4JJ1, 4HK1: Światło przeciwmgielne tylne |
| 4HG1: miejsce rezerwowe | |
| 6 | Podstawowy tryb wycieraczek |
| 7 | Sygnał dźwiękowy |
| 8 | Tryby wycieraczek (WYSOKI/NISKI) |
| 9 | Światła przeciwmgielne |
| 10 | Skrzynka odbioru mocy (GŁÓWNA) |
| 11 | 4JJ1, 4HK1: zamki drzwiowe (otwieranie) |
| 4HG1: miejsce rezerwowe | |
| 12 | Regulatory szyb |
| 13 | Reflektory (światła mijania) |
| 14 | 4JJ1, 4HK11), 4HG1: napęd na cztery koła |
| 4HK12): Sterowanie hamulcem silnikowym (modele z ABS) | |
| 15 | Reflektory (światła drogowe) |
| 16 | Światła boczne |
| 17 | 4JJ1, 4HK11): zawór elektromagnetyczny WOM (modele ze skrzynią manualną) |
| 4HK12): zapasowe siedzenie | |
| 4HG1: zwolnienie hamulców silnikowych | |
| 18 | 4JJ1, 4HK11): Wyłączanie WOM |
| 4HK12): zapasowe siedzenie | |
| 4HG1: hamulec silnikowy | |
| 19 | 4JJ1, 4HK11): ładowanie (przy pracującym silniku) |
| 4JJ1, 4HK11), 4HG1: Skrzynia rozdzielcza (zapłon 1) | |
| 4HK12): Zawór elektromagnetyczny WOM (modele ze skrzynią manualną) | |
| 20 | 4JJ1, 4HK11): elektryczne szyby (tył) |
| 4HK12): Wyłączanie wału odbioru mocy | |
| 4HG1: Ładowanie (przy pracującym silniku) | |
| 21 | 4HG1: Elektrozawór WOM (modele ze skrzynią manualną) |
| 22 | 4HG1: Wyłączanie WOM |
- 1) Pojazdy z silnikiem 4JJ1/4HK1 (modele z hydraulicznym układem hamulcowym)
- 2) Pojazdy z silnikiem 4HK1 (modele z układem hamulców pneumatycznych)
Bezpiecznik nr 31 o natężeniu 20A odpowiada za działanie zapalniczki samochodowej.
Boks za salonem
Kolejna skrzynka bezpieczników i przekaźników znajduje się na zewnątrz samochodu. Aby się do niej dostać, należy zdjąć osłonę ochronną.

Przykładowe zdjęcie


Dystrybucja
| 1 | 10A Światła obrysowe boczne |
| 4HG1: nieużywany | |
| 1 | 15A 4JB1-TC: podgrzewacz paliwa |
| 2 | 10A Moduł sterowania silnikiem (ECM) |
| 4JB1-TC, 4HG1: nieużywane | |
| 3 | Bateria 10 A |
| 3 | 15A 4JB1-TC: Akumulator |
| 4 | Klimatyzator 10A |
| 4JB1-TC: nieużywany | |
| 5 | 20A 4HK13): Klimatyzacja, ABS |
| 4HK11,2), 4JJ1: nieużywane | |
| 4JB1-TC: Światła obrysowe | |
| 4HG1: podgrzewacz paliwa | |
| 6 | 15A 4JB1-TC: klimatyzator |
| 4HK1, 4JJ1: nieużywane | |
| 4HG1: zatrzymanie silnika | |
| Naprawdę | |
| 1 | Rozrusznik |
| 2 | 4HK1, 4JJ1: Moduł sterujący silnikiem (ECM) |
| 4JB1-TC, 4HG1: nieużywane | |
| 3 | Świece żarowe |
| 4 | Sprężarka klimatyzatora |
| 5 | Wentylator skraplacza |
| 6 | 4HK1, 4JJ1: wyłącznik rozrusznika |
| 4JB1-TC: hamulec silnikowy | |
| 4HG1: zatrzymanie silnika | |
| 7 | 4HK11), 4JJ1: Światła obrysowe boczne (modele z tylnymi światłami przeciwmgielnymi) |
| 4HK12,3): Hamulec silnikowy | |
| 4JB1-TC, 4HG1: podgrzewacz paliwa | |
| 8 | Dźwignia zmiany biegów |
| 9 | 4WD 4WD (model NPS) |
| 10 | Podgrzewacz paliwa (modele z podgrzewaczem paliwa) |
| 11 | Sterowanie skrzynią rozdzielczą (model NPS) |
| 12 | Uruchamianie silnika (modele z podgrzewaczem paliwa) |
| 13 | 4HK12,3): światła pozycyjne (modele z tylnymi światłami przeciwmgielnymi) |
- 1) Modele z silnikiem 4HK1 (normy emisji spalin Euro 4) i hydraulicznym układem hamulcowym, modele z silnikiem 4JJ1
- 2) Modele z silnikiem 4HK1 (normy emisji spalin Euro 2 lub Euro 3) z hydraulicznym układem hamulcowym
- 3) Modele z silnikiem 4HK1 i układem hamulców pneumatycznych
- 4) Modele z silnikiem 4JB1-TC (typ 1)
- 5) Modele z silnikiem 4HG1 (typ 1)
Typ 3
Nadaje się do silników 4JB1. Układ pola jest taki sam jak w przypadku typu 2.
Pudełko we wnętrzu samochodu
Zdjęcie


| 1 | Lampy 10 A (baterie) |
| 2 | 10A Oświetlenie wnętrza, system audio |
| 3 | Hamulec silnika 10A |
| 4 | 15A Zamki do drzwi |
| 5 | 15A Światła przeciwmgielne |
| 6 | Elektryczne szyby 25A |
| 7 | 10A Światło drogowe (lewy reflektor) |
| 8 | 10A Światło drogowe (prawy reflektor) |
| 9 | 10A światła stopu |
| 10 | 10A Światło mijania (lewy reflektor) |
| 11 | 10A Światło mijania (prawy reflektor) |
| 12 | 10A Światła boczne |
| 13 | Lampy 10 A (baterie) |
| 14 | Zapłon 10A (IGN2) |
| 15 | Rozrusznik 10A |
| 16 | 10A Zatrzymanie silnika |
| 17 | Zapłon 10A (IGN1) |
| 18 | 10A Światła cofania |
| 19 | 10A Instrumenty |
| 20 | 15A System audio (ACC) |
| 21 | 10A Klimatyzator |
| 22 | 15A Klakson |
| 23 | 15A Kierunkowskazy, światła awaryjne |
| 24 | Wycieraczka 25A |
| 25 | Zapasowy |
| 26 | Zapasowy |
| 27 | Zapasowy |
| Przekaźnik | |
| 1 | Światła boczne |
| 2 | Reflektory (światła drogowe) |
| 3 | Reflektory (światła mijania) |
| 4 | Elektryczne szyby |
| 5 | Światła stopu |
| 6 | Ładowanie (podczas pracy silnika) |
| 7 | Wyłącznik zapłonu (kluczyk włączony) |
| 8 | Hamulec silnikowy |
| 9 | Podstawowy tryb wycieraczek |
| 10 | Tryby wycieraczek (WYSOKI/NISKI) |
| 11 | Światła przeciwmgielne |
| 12 | Sygnał dźwiękowy |
| 13 | Zarezerwuj miejsce |
| 14 | Silnik wentylatora |
Boks za salonem
Przykładowe zdjęcie


| 1 | 10A 4HG1 (typ 2), 4HG1-T: zatrzymanie silnika |
| 1 | 15A 4JB1-TC (typ 2), 4JB1: zasilanie |
| 2 | 10A 4HG1 (typ 2), 4HG1-T: bateria zapasowa |
| 2 | 15A 4JB1-TC (typ 2), 4JB1: podgrzewacz paliwa |
| 3 | 10A 4HG1 (typ 2), 4HG1-T: podgrzewacz paliwa |
| 3 | 20A 4JB1-TC (typ 2), 4JB1: klimatyzator |
| 4 | 10A 4HG1 (typ 2), 4HG1-T: klimatyzator |
| 4 | 20A 4JB1-TC (typ 2), 4JB1: wentylator skraplacza |
| Przekaźnik | |
| 1 | Podgrzewanie wstępne |
| 2 | Rozrusznik |
| 3 | 4HG1 (typ 2), 4HG1-T: zatrzymanie silnika |
| 4JB1-TC (typ 2), 4JB1: nieużywany | |
| 4 | Ogrzewanie paliwowe |
| 5 | Wentylator skraplacza |
| 6 | Hamulec silnikowy |
| 7 | 4JB1-TC (typ 2), 4JB1:CSD |
| 4HG1 (typ 2), 4HG1-T: nieużywane |
To wszystko. A jeśli macie coś do dodania lub chcecie podzielić się swoimi pomysłami, piszcie w komentarzach.